BE AWARE: WE CANNOT ALLOCATE SPECIFIC LOTS TO YOU FOR PURCHASE AS THIS LAND IS SELLING SO FAST THAT THE DEVELOPER WILL ONLY ALLOCATE LOTS WHEN AN EOI IS RECEIVED AND THE SMALL INTITAL DEPOSIT IS PAID. THIS PROPERTY DESCIPTION IS FOR EXAMPLE ONLY! See further notes in the advertising copy
Ravenswood WATERS, RAVENSWOOD
Natural Charm meets Lucrative Investment Potential
Discover Ravenswood, an alluringly serene fringe suburb of Perth where pristine meets potential! Perched on the banks of the Murray River, this favourite hotspot amongst locals offers unique investment opportunities in a serene setting. The area boasts a tight-knit community, with properties promising high rental yields. Embrace the relaxed pace of life while benefiting from steady growth trends. Invest in Ravenswood, where its rapid engulfment by the urban sprawl coupled with its rich community spirit, ensures a stable and rewarding investment journey. Secure your piece of Perth’s legacy today .
Invest today in this high growth location! LOTS ARE SELLING SO FAST
HENCE PRICING IS LISTING HERE AS: FROM $……….?
This Opportunity:
Land:
• Please be aware that due to the very fast sale rate of this estate that the developer will only allocate lots when there is an EOI submitted including a pre approval from lender for finance. Therefore this info is purely generic in content and not specific.
Example lot size: 458m2. Price $325,000 Registration estimated May 2026
Dwelling:
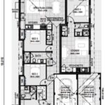
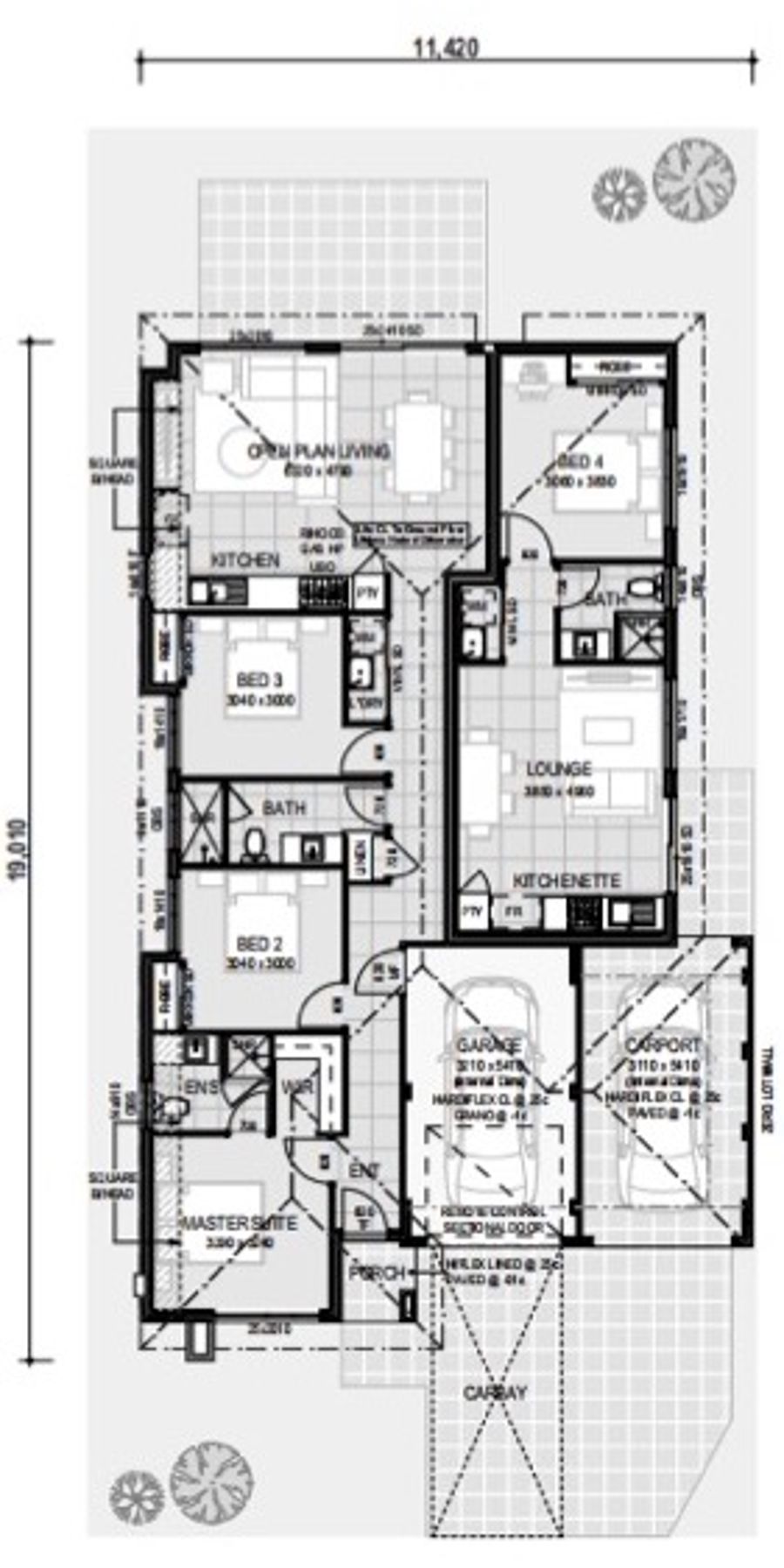
Dual. Occupancy: total of 4 beds, 3 baths and 2 cars
Main Dwelling: 3 beds, 2 baths and 1 garage
Secondary dwelling: 1 beds, 1 bath and car garage
Size: 207m2. Build cost estimate: $556,000
Build time: 10+ months
Rental estimate: $1000 estimate combined per week – Gross yield 5.89%
Two contract purchase – Land contract + Building Contract
Approved dual occupancy design
FULL TURN KEY package for occupation
Stone benchtops throughout , and many other quality features included
To Purchase:
Need EOI plus pre approval letter from lender, or LOE form supplied by us
ID for all buyers
When received developer will allocate suitable approved lot for dual construction
Land deposit: $5000 (refundable if not proceeding)
Build Deposit: $3500 (Pre works fee and not refundable)
Request additional information if required. Please refer to the brochure which is also provided
PRICING IS LISTED AS FROM $…… DUE TO ACTUAL LOT BEING ALLOCATED – THIS PRICE IS JUST AN EXAMPLE. SPEICIF LOTS ARE ALLOCATED WHEN SIGNED EOI’S ARE RECEIVED AND INITIAL DEPOSIT HAS BEENB PAID.
For Sale: FROM….. $881,990
Kaye Tilley 0418 823 046







