Look no further, this is an affordable dual investment home – and the location is just great, just 10- 15 mins drive into the busy commercial centre of Toowoomba City – but live in the peace and quiet of this lovely small township – live with hustle and bustle but be able to access everything for daily life!
Glenvale has its own neighbourhood facilities for everyday life – but just once a week visit the major shopping area of Toowoomba City – which just abounds with everything! This is what the locals say: “Wow where to start, I have no intentions of ever moving away. Glenvale is an absolute gem tucked 10 minutes out of Toowoomba, this means we get all the benefits of a small township with none of the crime or noise.”
PROPERTY DETAILS: lot 313 Alford Grove Estate, Glenvale – Toowoomba area
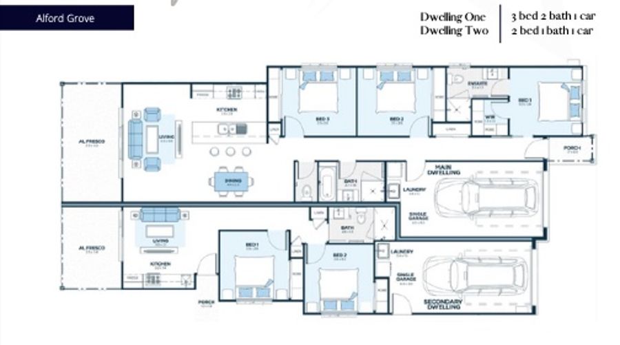
DUAL OCCUPANCY – 5 BEDS, 3 BATHS AND 2 CARS
Main dwelling: 3 beds, 2 baths and 1 car –
Secondary Dwelling: 2 beds 1 bath and 1 car
LAND SIZE: 606m2. Land cost: $395,500
HOUSE SIZE: 209m2. House build cost: $647,090
TOTAL PACKAGE COST: $1.042,590
Rental estimate: $1000 to $1040 per week total
THIS PROPERTY IS NOT YET CONSTRUCTED. IT IS LOCATED WITHIN A NEW ESTATE WHICH IS CURRENTLY UNDER CONSTRUCTION – TITLES ARE ESTIMATED TO BE AVAILABLE IN JUNE 26.
To Purchase:
EOI with initial $1000 deposit
Subject to finance – you can get preliminary approval but final approval will not be done until lots are fully constructed and valuers can inspect and appraise – then unconditional approval would be available within 21 days of valuation being received by lender
Land settlement: 14 days after registration of title – land deposit payable will be 10% of land price
On unconditional approval an initial building deposit of 5% of build cost is required to be paid – then builder prepares and submits the construction info for construction approval.
Total time frame to completion – allow 8-10 months
FOR SALE: $1.042,590
Kaye Tilley 0418 823 046



