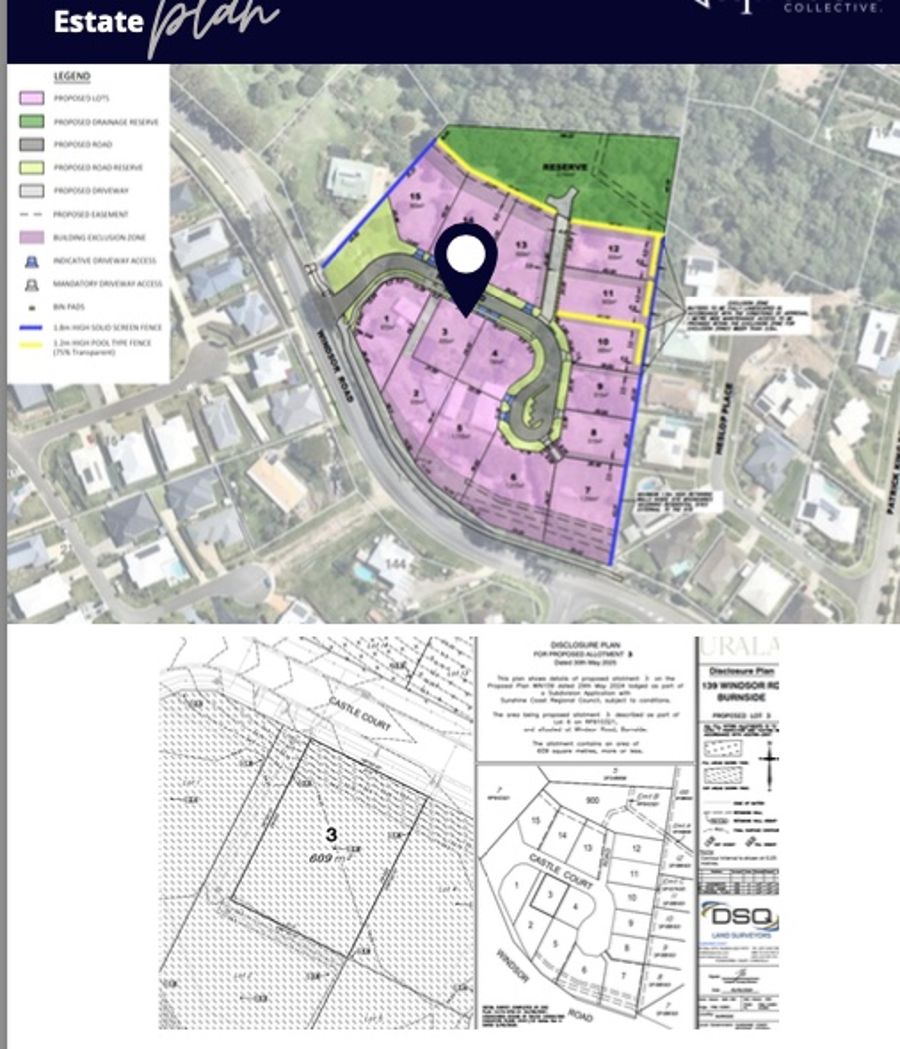
Lot 3 Urala estate, Burnside – Nambour:
Nambour is on a real growth surge! This town has begun to buzz! Property is located within a short drive distance to the very centre of the City of Nambour. It is also short distance to schools and other services. Nambour is just 15 mins inland from the coastal strip of the Sunshine Coast including Maroochydore, the major commercial hub on the coast. It is recognised as a stable town with a middle class demographic. The Sunshine Coast General Hospital is located here as well as the SSCoast Council offices. Nambour has many educational facilities including both public schools both primary and secondary level, and numerous private colleges. The township is very self sustaining and just recently there has been a surge in demand for land and investment opportunities. It is very picturesque area located in an undulating location. If you travel up the mountain range you will be in the tourist locations of beautiful Montville, Maleny and other famous Blackall Range tourist destinations. Nambour is the hub of the train/bus network for the Sunshine Coast with the only major train transit station servicing Brisbane and further north to Far North Queensland. It has excellent and quick access to the Bruce Hwy.
Land has been very scarce on the Sunshine Coast, and this new estate in Burnside a suburb of Nambour City, has just recently been released.
Note the estkmated registration of title date is Quarter 3 2026.
OUR OPPORTUNITY: – note the garage for the main dwelling is for 2 cars!
We offer
Lot 3 Urala Estate, Nambour: Land size – 605m2 – Land price $595,000 Land is to registered in Quarter 3 2026
New estate currently still under construction
DUAL OCCUPANCY
With total of 5 beds, 3 baths, 3cars
Total size of dual: 265m2 Building cost: $679,865
Unit 1: 3 beds, 2 baths,2 cars
Unit 2: 2 beds, 1 baths, 1 car
Full Turn key – tenant ready
Sold as house and land package – off the plan – Two contracts
Inclusions: summary list is available This builder is a good quality builder with very good standard of build and excellent finished quality and presentation.
Please refer to the brochure for the short summary list.
Upon enquiry we would be able to supply to you the complete inclusions list.
RENTAL ESTIMATE: $1020 to $1060 total combined income per week
Nambour is buzzing with activity and we are experiencing increased sale prices for both land and constructed stock. Buy now as the market is lifting and demand has skyrocketed! This will continue as this area is centrally located on the coast with great connectivity to all areas. This area is very sought after, as there is absolutely no land available on the Coastal side for dual key properties.
Also prices here have not yet peak – there is still room for profit to be made on both the land and the build cost!
Method of Purchase:
Expression Of Interest (non binding) with initial holding deposit $1000
Contract Conditions: 21 days finance
Two contract purchase: Land and Building Contract
Land Contract settlement: 14 days after title registration
Build Contract: on unconditional finance approval pay to the builder an amount calculated at 5% of the total build cost (initial deposit claim)
Call Kaye today for additional information.
This property is subject to being available for sale at the time of your enquiry.
THIS PROPERTY IS NOT YET CONSTRUCTED
FOR SALE: $1.292,865
KAYE TILLEY 0418 823 046



